Chargement...
 Accueil    300 m² au centre ville de Valence

300 m² au centre ville de Valence

VALENCE,
26000, France
290 000€ À vendre
AUTRES
  • 3
  • 0
  • 0 Bedroom
  • 0 Bathroom
L'agence immobilier
L'agence immobilier
Contacter l'agent

Description

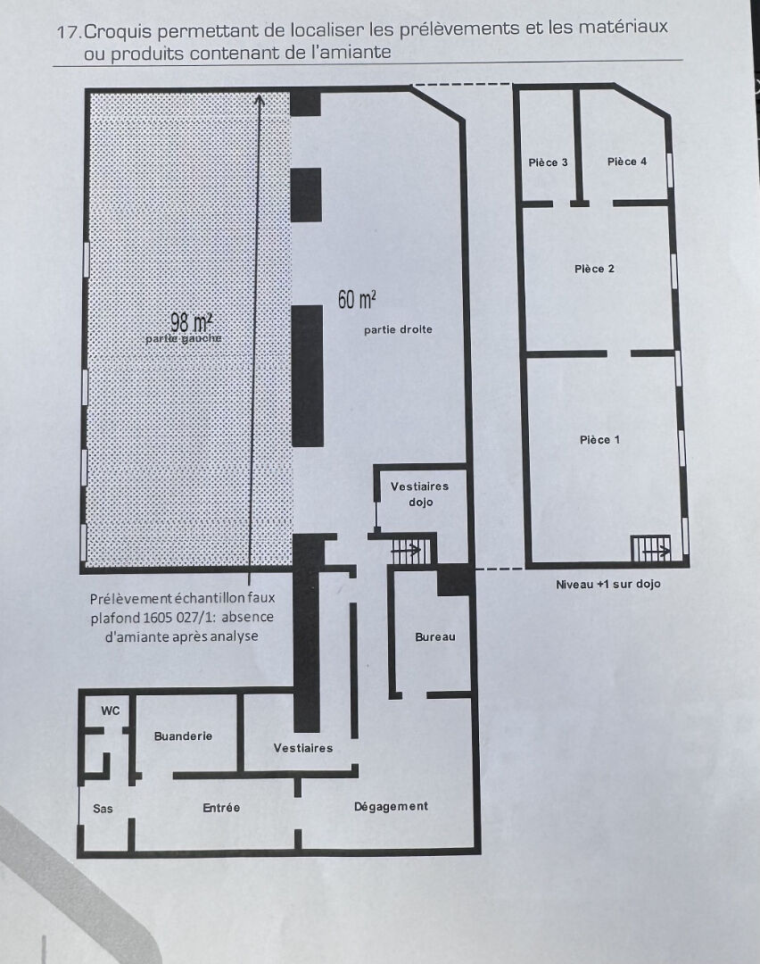
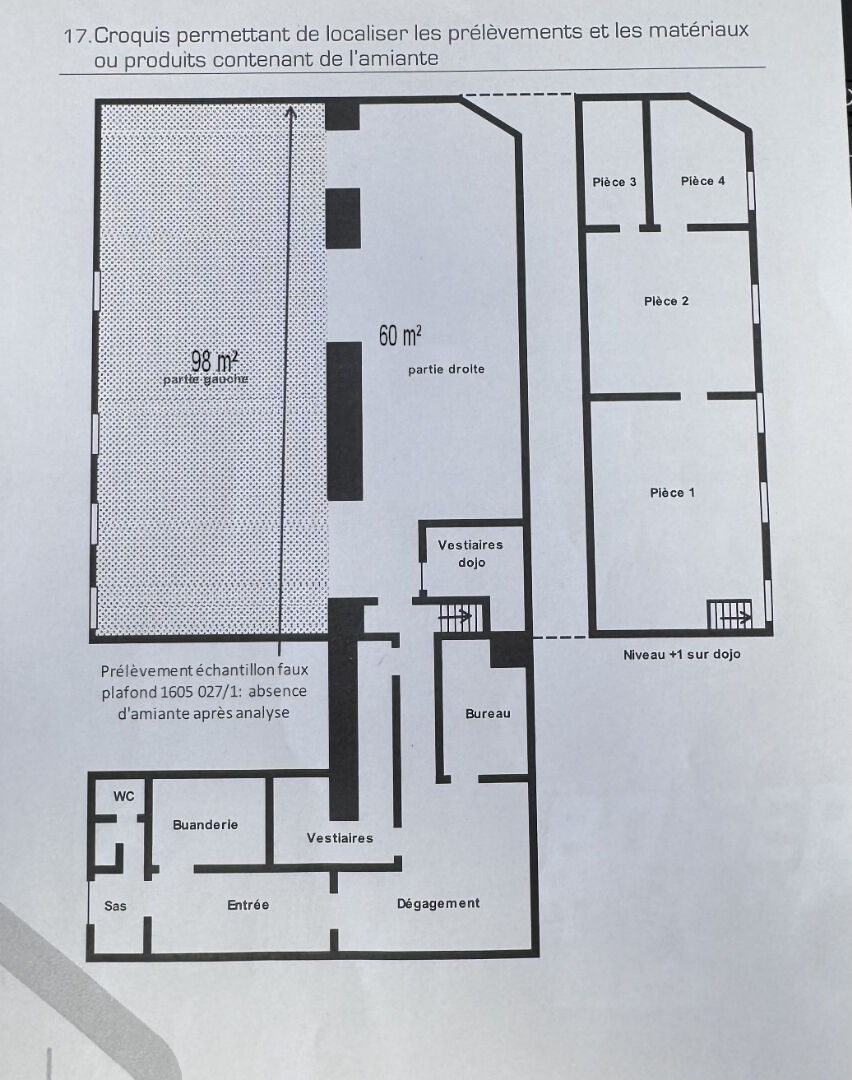
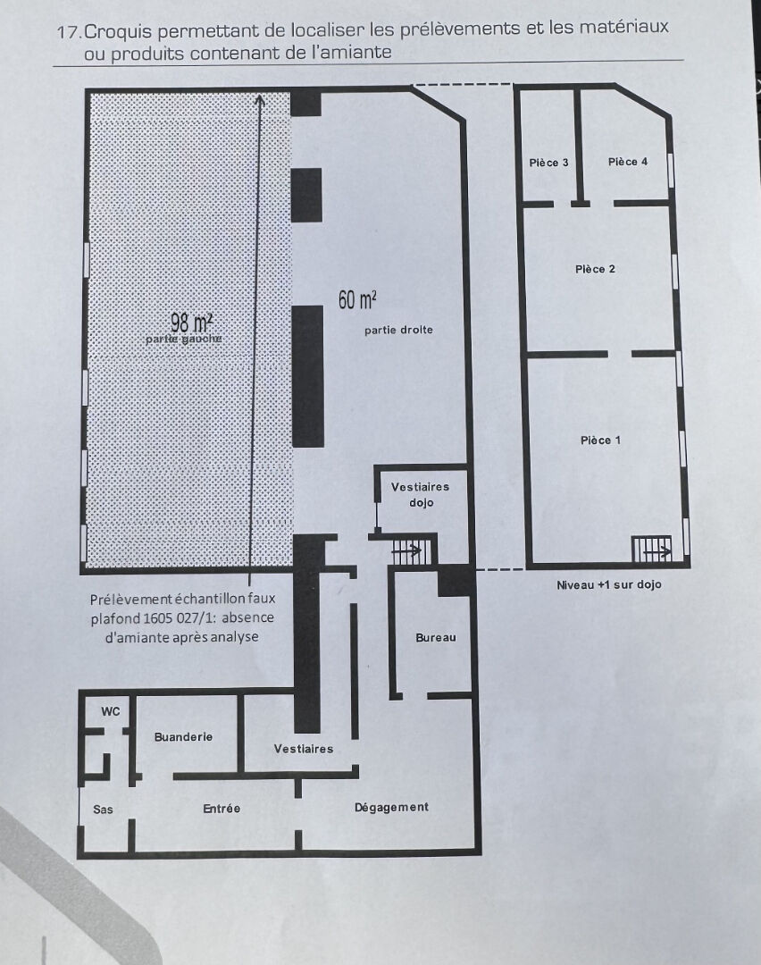
Une surface rare de 297.61 m² carrez, qui se compose principalement de deux grandes pièces de 98 et 60 m² , avec bureau, buanderie, vestiaires, et en mezzanine deux autres pièces et dépendances.
Local à usage de salle de sport, local commercial, atelier, lieu de stockage …
Copropriété de 19 lots – dont 16 lots habitation.

Charges annuelles : 220 euros.

Commodités

No amenities.