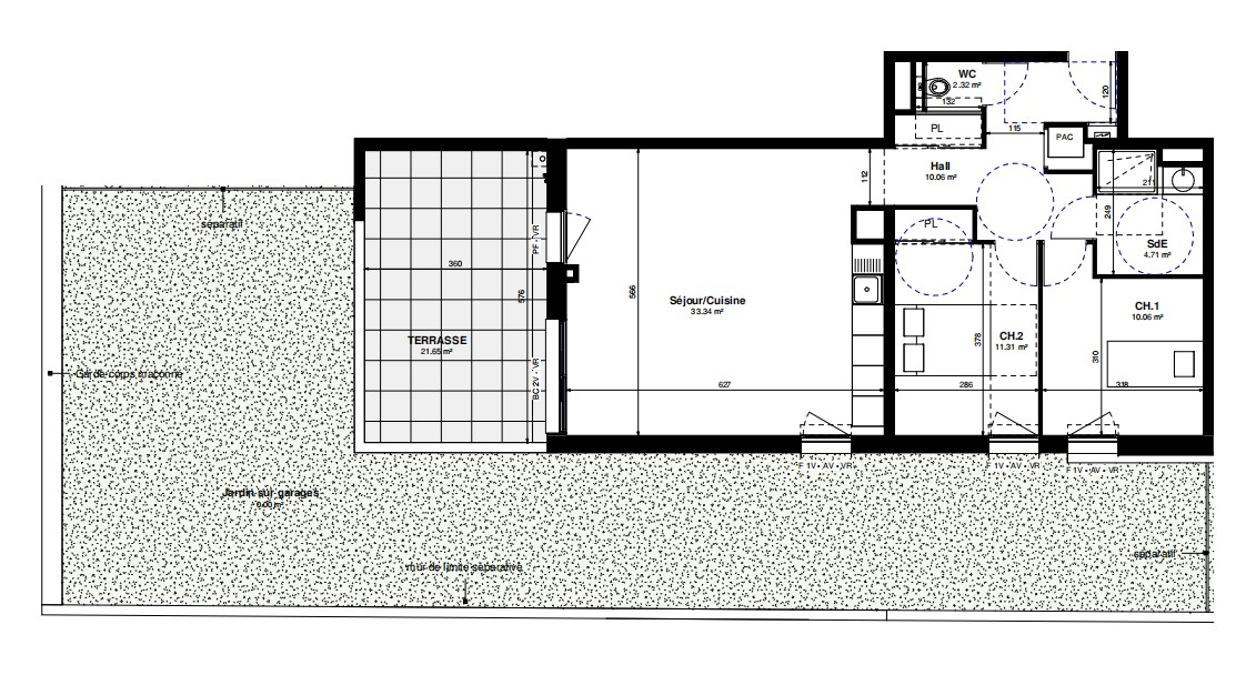
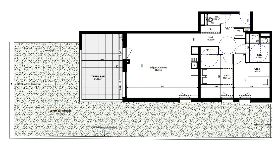
Un appartement récent de type 3 de 75.19 m² avec jardin sans vis à vis dans cette copropriété Le VELASQUEZ récente de 2022 .
Elle se compose de 31 lots principaux au centre ville de Valence, avec une possibilité en sus de garage sécurisé en sous sol.
Celui nous offre deux chambres avec accès direct au jardin, une belle terrasse couverte de 22 m² au sud – cuisine équipée, chauffage au sol chauffant et rafraichissant, avec faibles charges de 1208 euros /an.
Copropriété de 102 lots – dont 31 lots habitation. (Pas de procédure en cours).
Charges annuelles : 1208 euros.
